16-Field Soccer Haven: The Ultimate Guide To SBLI Fields At Progin Park's 2025 Events And Facilities
Opened in 2007, SBLI Fields at Progin Park in Lancaster, Massachusetts, has solidified its reputation as one of the premier soccer complexes not just in New England, but across the entire United States. This expansive, state-of-the-art facility is the official home of Massachusetts Youth Soccer (MYSA) and serves as a vital hub for regional and national tournaments, providing a top-tier playing experience for thousands of young athletes every year. As of , the complex continues to host a packed schedule of high-stakes events and is constantly lauded for its immaculate playing surfaces and comprehensive amenities.
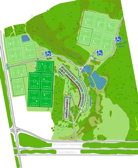
The complex is a monumental achievement in youth sports infrastructure, featuring an impressive sixteen fields designed to meet stringent international standards. Whether you are a player, coach, or parent, understanding the sheer scale and quality of this facility is key to appreciating its role in the Massachusetts soccer landscape. The partnership with SBLI (Savings Bank Life Insurance) ensures the complex remains a world-class venue for competitive and recreational soccer.
The State-of-the-Art Progin Park Facility: A Closer Look
SBLI Fields at Progin Park is strategically located in Lancaster, MA, making it accessible for teams traveling from all over the Northeast. The complex is meticulously maintained and engineered to handle the high volume of play that comes with hosting major tournaments, offering a blend of traditional and modern playing surfaces. This dedication to quality has made it a benchmark for youth sports complexes.
Key Facility Features and Field Breakdown
The complex boasts a total of 16 full-sized fields, which are a major draw for tournament organizers seeking consistent, high-quality playing conditions. The field mix is designed to accommodate different scheduling needs and weather conditions, ensuring events can proceed smoothly.
- Total Fields: 16
- Natural Grass Fields: 11 fields, offering the classic soccer playing experience.
- Field Turf Synthetic Fields: 5 fields, providing a durable, all-weather surface that maintains playability regardless of conditions.
- Standard Compliance: Every single field at the complex meets stringent FIFA standards, ensuring a professional and consistent playing environment for all age groups.
Beyond the playing surfaces, the facility is designed with the spectator and athlete experience in mind. Essential amenities contribute significantly to the overall comfort and convenience of visitors who spend long days at the park.
Essential Visitor Amenities
- Concessions: On-site food and beverage options are available, a critical feature during large, multi-day tournaments.
- Restroom Facilities: Clean and adequate restroom buildings are provided to handle large crowds.
- Parking: Ample parking space is available, though visitors are always advised to arrive early during major events.
- Event Rental Services: The park offers event rental services, making it a flexible venue for various sports and community gatherings.
- Proximity to Services: The Lancaster location is close to team-friendly restaurants and nearby hotels, simplifying logistics for traveling teams.
Major Tournaments and Can't-Miss 2025 Events
SBLI Fields at Progin Park is synonymous with high-level youth soccer competition. Its calendar is consistently filled with prestigious tournaments that draw top teams from across Massachusetts and the greater New England region. The most recent and upcoming events highlight the complex's role as the epicenter of youth soccer.
Key 2025 Soccer Competitions
The 2025 schedule is already shaping up to be a busy one, with several major championships and new, engaging events confirmed:
- Massachusetts Tournament of Champions (MTOC): This is one of the complex's flagship events, a massive annual tournament that brings together the best town-based travel teams from various leagues across the state to compete for the state title.
- 2025 Districts Tournament: Scheduled to be held on the front fields of the complex on August 2nd and 3rd, 2025. This tournament is a key competitive event for local soccer districts.
- 2025 Select Legends Cup: Hosted at the state-of-the-art facilities, this tournament ensures a top-notch and convenient playing experience for all participating diverse age groups.
New and Exciting Partnerships
In a move to offer new and engaging opportunities for local players, Mass Youth Soccer has recently welcomed a new partner to the complex:
- Soccer Wars: Mass Youth Soccer is collaborating with "Soccer Wars" to host events at SBLI Fields at Progin Park. This partnership is aimed at introducing new and engaging soccer formats to the community, broadening the scope of activities beyond traditional league play.
- FC Stars College Showcase: The complex is often utilized as a premier location for college showcases, including the FC Stars College Showcase, which helps connect talented youth players with college recruiters.
The Impact of SBLI Fields on Massachusetts Youth Soccer
The existence of a dedicated, high-quality venue like SBLI Fields at Progin Park is a game-changer for youth soccer development in Massachusetts. It provides a centralized, professional environment that elevates the standard of play and competition. The partnership with SBLI, a prominent regional institution, underscores the community commitment to health and sport.
Topical Authority and Key Entities
The complex is a nexus for several key entities in the New England sports world, solidifying its topical authority in youth sports:
- Massachusetts Youth Soccer (MYSA): The official governing body and primary user of the complex.
- SBLI (Savings Bank Life Insurance): The naming partner, whose multi-year agreement supports the facility's maintenance and operation.
- FIFA: The international body whose field standards are met by every pitch at Progin Park.
- Lancaster, MA: The host town, which benefits from the economic activity generated by visiting teams and families.
- New England Premier Leagues: Various regional leagues utilize the complex for season-ending tournaments and showcase events.
- Select Soccer Club: Organizer of the 2025 Select Legends Cup.
- Soccer Wars: New event partner bringing innovative soccer programming.
- FC Stars: A major club that uses the facility for college showcases.
- Bristol County, US: A nearby geographical area from which many teams travel.
- Worcester County, US: The county where the complex is located, a key regional entity.
- Mohawk Trail: The complex is nestled along this historic trail, adding a scenic element to the location.
- Citizens Bank: A previous sponsor, showing the history of corporate support for the fields.
- Hammer FC: Another club that lists the complex as a field location.
- Travel Sports Organizations: Groups that rely on the complex's amenities for organizing large-scale events.
For traveling soccer families and coaches, the SBLI Fields at Progin Park offers more than just a place to play; it offers a high-stakes, well-organized tournament experience. The consistent investment in both natural grass and synthetic turf fields ensures that competition can continue year-round and in varying conditions. The facility is a vital asset for the development of youth soccer talent and a testament to the power of community and corporate partnerships in sports.
Teams preparing for the 2025 MTOC, Districts Tournament, or any other premier event at this venue should be aware of the specific field surfaces to tailor their preparation. The blend of 11 natural grass and 5 Field Turf fields provides a dynamic challenge, requiring adaptability from all participants. The complex's success is a model for other youth sports organizations looking to build world-class facilities.
Detail Author:
- Name : Hipolito Prohaska III
- Username : ludie.cremin
- Email : ghaag@langosh.com
- Birthdate : 1999-12-22
- Address : 65316 Durward Pike Suite 134 East Ivahfurt, MT 13157
- Phone : +1.443.269.5316
- Company : Moore-Hauck
- Job : Marketing VP
- Bio : Optio quia eos totam aliquid. Recusandae architecto tempore dolor quod doloremque. Laboriosam porro voluptas id minima aut adipisci. Vel qui qui animi nisi suscipit.
Socials
facebook:
- url : https://facebook.com/kirlin1970
- username : kirlin1970
- bio : Commodi non aliquid ratione quis facilis.
- followers : 1211
- following : 687
instagram:
- url : https://instagram.com/danika_dev
- username : danika_dev
- bio : Minima natus veritatis minus fugiat. Placeat et maiores corporis aut odio.
- followers : 4804
- following : 1304
